AERO LIGHT SHOWROOM
SINGAPORE
Client / AeroLight
Sector / Appliances, Electrical, and Electronics Manufacturing
Service / Experience Design, Spatial Design
Aero Light Experience Showroom is a small but deeply immersive experiential centre for innovative lighting solutions. Designed with casual and inviting spaces, customers are made to feel at ease and are encouraged to linger, explore, and discover. A play on vertical volumes and curvatures throughout the showroom show off the purity of lighting. Beyond being a typical retail space, it educates and enables customers to experience and appreciate the benefits of good lighting and lighting technology, strengthening the design community.

Background
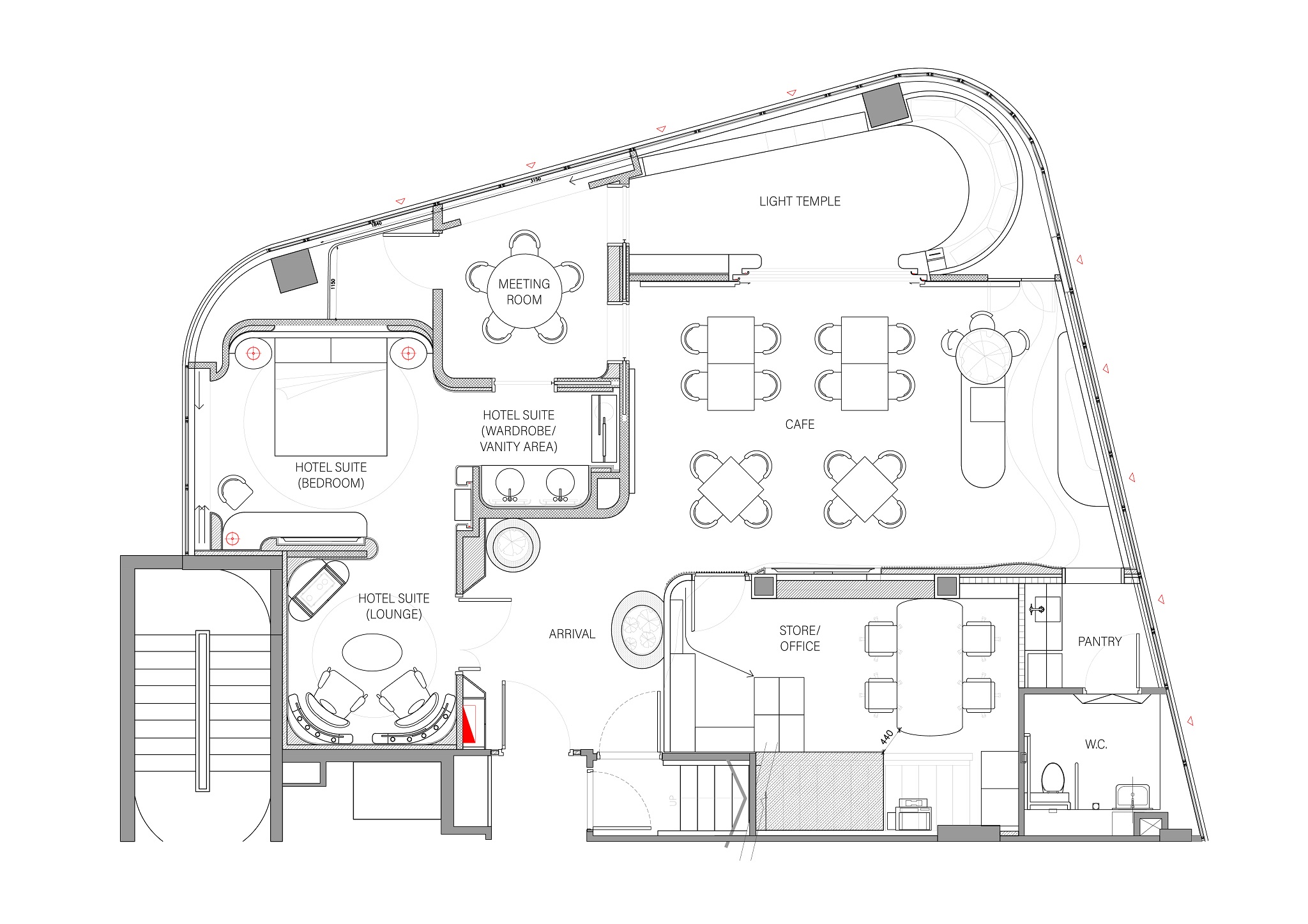
At approximately 177 sqm in size, Aero Light Showroom is a small but deeply immersive experiential centre for innovative lighting solutions. Beyond being a place where retail transactions take place or where products are displayed, it educates customers, enables them to experience and appreciate the benefits of good lighting and lighting technology, and strengthens the design community.
This is the first type of lighting showroom in Singapore that places a large emphasis and a large amount of space to the community. Singapore is a design hub that has a lively lighting design community and Aero Light, a niche architectural lighting manufacturer, had a vision to tap into that.
Challenge
The brief was to go beyond showcasing the client’s extensive catalogue of over 200 lighting products, and to make their showroom a destination that could facilitate networking, co-working and seminars.
Aero Light primarily designs and manufactures products that are used in hospitality and residential environments. Hence, their products’ advantages had to be showcased in an immersive way that could engage the sensory perceptions and emotions of the visitors.
The client’s wish list also included a lighting showcase that features as many products as possible, a demonstration zone for motorised lights designed for high ceilings, a variety of spaces that could accommodate large or private meetings, co-working spaces for visiting clients and designers and a technical workshop for staff and storage.
Approach - A User Journey for Immersive Experience
To create an engaging experience for first time customers, we crafted a user journey:
Arrival - First, customers arrive at the foyer, which is a minimal space featuring Aero Light’s branding. It was designed to be clean and pure as a contrast to the other more elaborate spaces that they will traverse to, to create an element of pleasant surprise.
Cafe - Customers are next ushered into the cafe to get acquainted with the surroundings (instead of being made to immediately start looking at lights). They are offered refreshments or can help themselves at the bar. Once customers are settled in, Aero would begin to introduce the company, and demonstrate the lights being used in the cafe space.
Visiting clients or designers can drop in to work, read catalogues, socialise and interact etc, as you would at a café. This area also serves as an event and seminar space. The bar is the focal point here, with a backlit bottle display. The introduction of a tree and hanging foliage softens the space and creates a relaxed vibe, while also giving the client opportunities to showcase their landscape lighting products.
Hotel Suite – The client uses this space to simulate how their products are used to enhance a luxurious and sophisticated hospitality environment. The design team had to be very clever about the room design as it is smaller than a typical hotel suite. The suite included a lounge with an in-house custom-designed minibar, bedroom, wardrobe and vanity counter. Lighting and blind controls were fully integrated so that the customers can appreciate different scene settings.
Meeting Room – the hotel suite is connected to a meeting room that doubles as a showcase for simulating lighting scenarios for different functions and table settings (meeting, casual dining, fine dining). The introduction of a luminous ceiling with tunable white light and framed by foliage alludes to a skylight and helps to alleviate the tight space, while providing yet another lighting opportunity.
Light Temple – Visitors are next led into the Light Temple, a library stocking more than 200 models of luminaires and a curved display showcase at one end. Here they are encouraged to explore, examine and play with lights which are methodically arranged and can be individually controlled or plugged and played.
Back to the Café – Visitors return to the Café, and here the motorised downlights in the high baffle ceiling are demonstrated. The show and tell typically ends here, and visitors can stay on to interact, ask questions etc.
The role of materials, colours and textures in spatial design
The smooth transition from one area to another is aided by strategic planning of door openings, which also allows the client to curate different journey sequences depending on the target audience. In addition, the overall colour scheme and materials selected create nuanced distinctions between the different areas, while tying them together to form a seamless experience.
Aero Light Showroom allows customers to appreciate the emotional impact lighting has on one’s mood and perception, through the use of curated lighting preset scenarios. Customers experience first-hand aspects of lighting that cannot be grasped easily from text or images – e.g. lighting techniques, glare control, colour rendering, smooth dimming behaviour etc. This helps the client communicate the unique selling point of their products through a soft-sell approach. Using spatial and experience design, this project is a place of engagement and inspiration for today’s young homeowners and hospitality professionals who value emotional connection and a well-crafted experience in-store.
Using the space to highlight the product advantages
A key challenge was having to achieve the effective display of hundreds of lighting products in a fairly small space. Deriving zonal areas (the Cafe, the Hotel Suite, the Light Temple and the Meeting Room) helped us to distinguish and curate the products according to different lighting narratives in each area. While the floor area of the entire space was small, the high ceilings presented great spatial and lighting opportunities.
Therefore, in the Light Temple, we used the vertical volume to inspire awe and wonder. We created curved terraced ceilings to convey softness, and a feeling of infinity, which show off the purity of lighting. We used the layers of the terraced ceilings to heighten the visual experience of the curved feature showcase at the end. This treasury catalogues extensively all products offered by Aero and they are meant to inspire and aid designers in their work.
Here, we made use of the high space to showcase as many luminaires and their applications and effects as possible. The showcase was planned such that multiple lighting products could be shown in an optimal way to highlight their individual qualities and selling points.
We worked closely with Glint Lighting Design, who meticulously tailored how specific lighting models should be located on the ceilings and walls. Downlights were organised and laid out in a concentric manner according to size and application on terraced ceilings, with careful consideration to the matching of wattages and ceiling heights. Take a look at the sketches below to see the extent of the details.
Outcome
Aero Light Showroom provides a welcoming and valuable facility for the design industry to understand and see the importance of lighting. It has spaces curated specifically to facilitate the lighting design community in expanding their networks, collaborating, and growing the education of lighting. We even held events at the space to engage the community on the importance of good lighting and how it can craft better homes of the future.
Using spatial and experience design, this project was envisioned to be a place of engagement and inspiration. Today’s young homeowners and hospitality professionals value experience and emotional connection and hence are more likely to respond positively to a well-crafted experience in-store, and this is what sets physical retail apart from online retail.
For further questions regarding this project, please feel free to reach out to hello@theafternaut.com for more information.
The Afternaut Group Pte Ltd. 2024